|
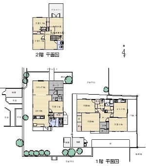
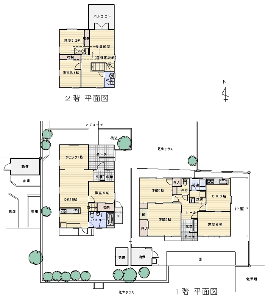
物件No.1520 今治市吉海町正味144-3、146、147、148、148-2、149、150(畑) 売家4,550万円 最適用途:保養施設 土地:宅地1,059.31u、畑244u、合計1303.31u(394坪) 西館:木造瓦葺2階建107.23u(32坪 H21新築) 東館:木造瓦葺平家建73.74u(22坪 H2新築) 接道幅員:北6.3m、東2.6m、南1.5m、西4.2m 交通:下田水港バス停より約1.9km 環境:住宅地域 土砂災害:土砂災害警戒区域内 給水:上水道 給湯:(西館)灯油ボーラー、(東館)ガス給湯器 トイレ:水洗ウォシュレットトイレ(公共下水接続済) 現況:R7.12からの空き家 取引態様:仲介 7.12.10 |
|||||||||||||||||||
|
|
![]() クリックで住宅地図展開 |
||||||||||||||||||
![]() 全景(南方向より) |
![]() 南方向より |
![]() 東方向より |
![]() 西方向より |
||||||||||||||||
![]() 南西方向より |
![]() 南方向より |
![]() 南東方向より |
|||||||||||||||||
![]() 南側芝生路面 |
![]() 西側の花畑 |
![]() 東側道路より |
|||||||||||||||||
![]() 真上より |
![]() 西側道路状況 |
![]() 南側道路状況 |
![]() 東側道路状況 |
||||||||||||||||
![]() 北方向より |
![]() 北側道路状況 |
![]() 北方向より |
|||||||||||||||||
![]() 北側芝生テラス |
![]() 西館へ |
![]() 西館玄関へ |
|||||||||||||||||
![]() 北側芝生テラス |
|||||||||||||||||||
![]() |
![]() 西館 玄関 |
![]() 西館 LDK |
![]() 西館 KよりLD |
||||||||||||||||
![]() 西館 1Fお手洗 |
![]() 西館 1Fお手洗 |
![]() 西館 K |
|||||||||||||||||
![]() 西館 2階ホール |
![]() 西館 2F書棚 |
![]() 西館 2Fお手洗 |
|||||||||||||||||
![]() 西館 2F洋室 |
![]() 西館 2Fホール |
![]() バルコニーより |
|||||||||||||||||
|
![]() 東館 玄関 |
![]() 東館 DK |
![]() 東館 洋室 |
||||||||||||||||
![]() 東館 洋室 |
東館 洗面 |
![]() 東館 浴室 |
|||||||||||||||||
![]() 東館 WC |
|||||||||||||||||||
| ※公図 | |||||||||||||||||||