|
物件No.1522 吉海町椋名796 売家 950万円 最適用途:住宅・別荘 宅地:191.02u(57坪) 建物:木造瓦葺平家建85.29u(25坪)平成21年新築)、車庫・物置へ22.05u(6.6坪) 駐車:車庫に1台、他は無料の駐車スペース利用 交通:南椋名バス停より約140m 都市計画:都市計画区域外 用地地域:無指定地域 災害:土砂災害警戒区域内、津波災害警戒区域内 環境:住宅地域 地勢:平地 県道:西10m 土砂災害:土砂災害警戒区域内 給水:上水道 トイレ:水洗トイレ(公共用下水接続済) 電気:中国電力 現況:R8.1末からの空家 取引態様:仲介 8.2.10 |
||||||||||||||||||
![]() |
![]() |
|||||||||||||||||
![]() 全景(西南方向より) |
![]() 北東方向より |
![]() 南西方向より |
![]() 外観 |
|||||||||||||||
![]() 玄関・車庫へ |
![]() ベランダより海を |
![]() ベランダより海を |
||||||||||||||||
![]() 玄関 |
![]() LDK |
![]() キッチン |
||||||||||||||||
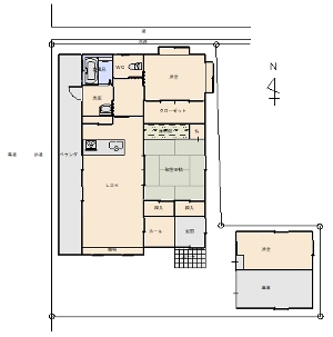
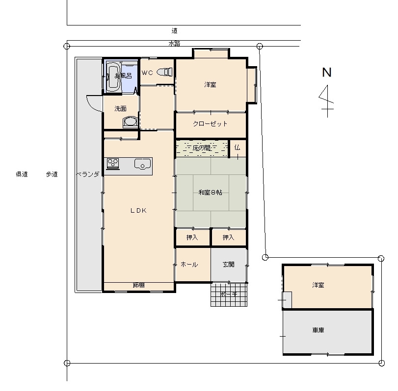
![]() 平面図 |
![]() 和室8帖 |
![]() 洋室6帖 |
![]() クローゼット |
|||||||||||||||
![]() WC |
![]() 洗面 |
![]() お風呂 |
||||||||||||||||
![]() 別棟の洋室 |
![]() 車庫の内部 |
|||||||||||||||||
|
![]() 駐車スペース |
![]() 近くの公園 |
![]() 長浜海水浴場 |
|||||||||||||||
| ※土砂災害警戒区域内、津波災害警戒区域内 | ||||||||||||||||||