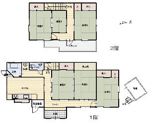
物件No.2096  宮窪町宮窪1919  売家 200万円  最適用途:住宅  土地:宅地206u(62坪)  住宅:木造瓦葺2階建136.22u(41坪)昭和47年新築 物置:CB造陸屋根平屋建4.7u  駐車:駐車場はなし( 隣に貸駐車場 月3,000円が有ります)  交通:土生バス停まで約170m  都市計画区域:都市計画区域外  用途地域:無指定地域  土砂災害:土砂災害警戒区域内  環境:住宅地域  地勢:緩やかな傾斜地  接道方向・巾:南東3.3m  電気:中国電力  ガス:プロパンガス  給水:上水道  給湯:エコ給湯  トイレ:水洗トイレ(浄化槽処理ですが、引込済の下水道接続で利用可)  現況:空き家   引渡:相談  取引態様:仲介  6.12.26









クリックで住宅地図展開




全景(南方向より)


南西方向より


東北方向より


南西方向より

物置

道路状況

玄関への階段

下屋




                    

玄関

和室

座敷

DK

洗面

浴室


   

WC
   

2階和室 

2階ベランダ 
 
     
(概算の諸費用)  
土地建物代      2,000,000円
契約書印紙代      1,000円
所有権移転登記代   約90,000円
固定資産税清算金(24,016円) 約12,000円
税込仲介料  198,000円
    合  計       約2,301,000円